Loke

Lekter til utleie.

Informasjon:
Havn: Stavanger, Norge
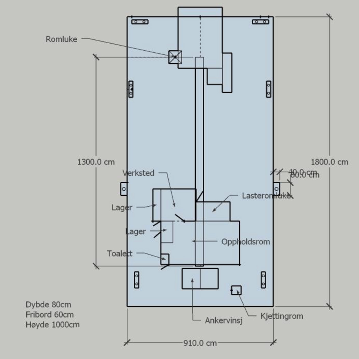
Type: Arbeids/spudslekter
Dimensjoner: L:18,00 B:9,10 H: D:0,8
Oppdrift:

Utstyr:
Generator: 25kw
Spuds: 2 stk Ø250mm x (9,0 m dybde)
Forhalingsvinsj:
Oppholdsrom
Verksted
Arbeidsbelysning
Bunkers – diesel 6000 liter

Nedlastinger:
Spesifikasjoner – loke

 

 

Kategori:

SEND EN FORESPØRSEL PÅ UTLEIE